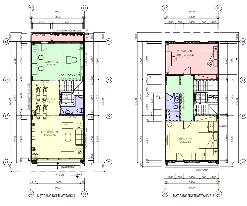
Mặt bằng công năng tầng 1
Tầng 1 được thiết kế với mục đích kết hợp giữa không gian tiếp khách và làm việc chuyên nghiệp. Từ lối vào chính là Khu tiếp khách rộng rãi, sang trọng. Trung tâm tầng là sảnh hành lang kết nối hệ thống thang máy và thang bộ, tối ưu việc di chuyển. Phía sau được bố trí một Văn phòng làm việc yên tĩnh, nhìn ra khu vực Sân sau có tiểu cảnh và tường đá ong, tạo môi trường làm việc thư thái, gần gũi với thiên nhiên.
Mặt bằng công năng tầng 2, 3
Tầng 2,3 là không gian nghỉ ngơi riêng tư cho các thành viên trong gia đình. Phòng ngủ chính (phía trước) sở hữu diện tích lớn, có lối dẫn ra ban công rộng thoáng để đón sáng và gió tự nhiên. Phòng ngủ sau được bố trí phía sau đảm bảo sự yên tĩnh. Khu vực vệ sinh chung và sảnh thang được đặt ở giữa, tạo sự thuận tiện trong sinh hoạt hằng ngày. Mọi phòng ngủ đều được tính toán vị trí đồ nội thất khoa học, giúp không gian luôn gọn gàng và thoáng đãng.
